Top 15 sunroom design ideas and costs. A sunroom can add sunlight into your home.
Diagram Of Sunrooms Top Electrical Wiring Diagram
Extremely significant when building sunrooms both pier size and the amount of weight your piers can support are critical factors.
Skematic of a sunroom. Sunroom replacement parts we make it convenient for you to order replacement parts for your patio enclosures screen room sunroom or solarium with our secure online store. Sun rooms and indoor patios are usually an extension off the main home where all the walls are made of glass windowsthis allows for great views outside and getting the maximum sun into your home to brighten it up. An easyroom sunroom or screen room kit allows you to save money on labor costs which makes your room addition very affordable.
Simply browse below for your product add it to your cart and follow the simple check out instructions. Sunrooms sun porches and sun lounges they all mean the same thing. Before you contemplate building a sunroom on your deck you need to ensure it can support the new structure.
Our sunroom construction guide will provide answers to your questions about the design manufacturing and installation of your sunroom. While a sunroom installation can be a complex process patio enclosures ensures your experience goes smoothlyfrom sunroom measurements to final installation. It doesnt really matter how you call it we are talking about a room with large windows and sometimes even a glass roof called conservatory designed to allow plenty of natural light in.
Afci circuit protection for a sun room frank yes according to the nec code the sun room is required to be on a afci circuit. View the patio enclosures sunroom photo gallery featuring ideas for screen rooms four season rooms three season rooms more. Before you decide to install a sunroom or screen room yourself it is important that you are an experienced do it yourselfer who has done your homework.
Unfortunately most deck piers are insufficient to carry additional loads. There are many types of decorations and layouts you can choose from for a small or large sun room. Due to its high proportion of glass a sunroom has less thermal mass than a normal living space it heats up faster but it cools faster too so if you intend to use the space year round an adequate heating and cooling system is mandatory.
This website uses cookies to ensure the best user experience. This website uses cookies to ensure the best user experience. Patio enclosures offers quality sunrooms solariums screen rooms screened porches awnings replacement windows and more custom designed and custom manufactured for your individual project.
How Do I Build A Solar Sunroom Home Readingeagle Com
Diagram Of Sunrooms Top Electrical Wiring Diagram
Schematic Designs For Sunroom Addition Sunroom Addition
Craftsman House Plan With Sunroom In 2020 House Plans Floor
Diagram Of Sunrooms Top Electrical Wiring Diagram
Sunroom Laundry Room Home Office Addition Balducci Remodeling
The Hampton Floor Plan With Optional Naples Sunroom Addition
Grant With Sunroom Renovated 1 Bed Apartment Retreat At
Elm C Without Sunroom For Brochure W Sunroom As Option Page 2
Gallery Of Mexican Swiss Chalet Perversi Brooks Architects 13
Champlinmspcrossings 0002 Southern Rose Sunroom Applewood Pointe
Renovated Dogwood With Sunroom 1 Bed Apartment Retreat At
2 Bed Bungalow Plan With Optional Sunroom House Plans 1200 Sq
Suitability With Sunroom 2 Bed Apartment Ashton At Dulles Corner
Greenbrier With Sunroom Lifestyle Homes Of Distinction
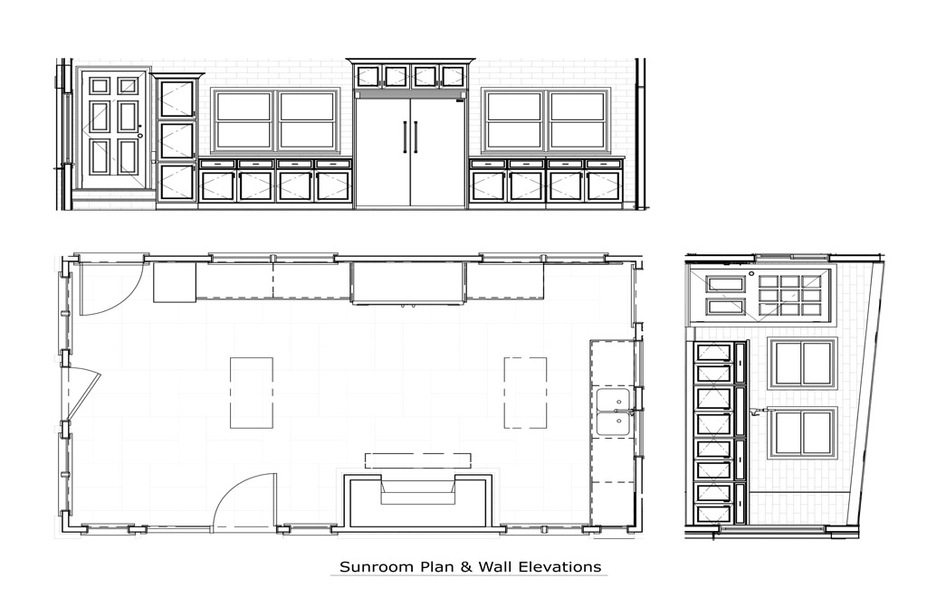
Sunroom Plan And Wall Elevation Letlow
Dallas Tx Bayou Bend Floor Plans Apartments In Dallas Tx
Sunrooms Canada The Leisure Store
Reality Loft With Sunroom 2 Bed Apartment Ashton At Dulles Corner
Colorado Springs Patio Cover Green Houses And Sunrooms
The Bradford With Sunroom And Garage 2 Bed Apartment Retreat
One Bedroom With Sunroom Available 1 2 Bedroom Apartments In
Family Canvas Tents Tagged 3 Room Dwights Outdoors
Cape Cod House Plan With Sunroom Garage House Plans House Plans
Indoor Outdoor Living 3br House Screened Pool Sunroom Updated
Destin With Sunroom 2 Bed Apartment Discovery Palms
Infinity With Sunroom 1 Bed Apartment Ashton At Dulles Corner
Available Apartments At Lincoln Villas On Memorial Apartment Homes
Floor Plans Home Architect Software Home Plan Examples Home
The Kristi With Garage And Sunroom 2 Bed 2 Bath Highborne Apts
Large Sunroom Abington Township Real Estate 4 Homes For Sale
Annotated Drawing Sunroom Transparent Png Clipart Free Download
Charming 2br W Sunroom Private Patio Hot Tub 10 Mins To
Sunroom Dealer Area Global Solariums
Dallas Tx Bayou Bend Floor Plans Apartments In Dallas Tx
3br 2ba Sunroom Pool And Jacuzzi Ra189878 Redawning
Three Deluxe With Sunroom 3 Bed Apartment Siena On Sonterra
Halstad With Sunroom Option 2nd Floor Alliance Homes
Pin By Masonic Villages Of Pennsylvania On Masonic Village At
One Bedroom With Sunroom Robinhood Court Apartments And Villas
New Home Floorplans In Odessa Bayshore I With Sunroom Detail
The Dogwood With Sunroom 1 Bed Apartment Retreat At River Park
3 Bedroom Craftsman Bungalow House Plan With Sunroom
Panama Jack Outdoor Sunroom Furniture Panama Jack Outdoor
Gallery Of Mexican Swiss Chalet Perversi Brooks Architects 12
Cape Cod House Plan With Sunroom 19606jf Architectural Designs
Craftsman Sunroom Remodel In Madison Wi A Better Home
Kitchen Bump Out With Attached New Sunroom
A Sunroom And Articulated Fence Were All It Took To Update This Home
Discovery Palms Apartment Rentals
Deluxe With Sunroom 1 Bed Apartment Siena On Sonterra
Horizon Sunroom Available One Two And Three Bedroom Apartments
Available Apartments At Lincoln Villas On Memorial Apartment Homes
Woodstock Ga Avonlea Towne Lake Floor Plans Apartments In
Floor Plan Main Floor With Sunroom Option 1890 Sq Ft
Sunrooms Canada The Leisure Store
3br 2ba Sunroom Pool And Jacuzzi 3 Bedroom Home Palm Springs
Sunroom Roof Options Seattlesun Sunroom Guide Sun Rooms
Whole House Makeover Clark Construction
Exclusive New American House Plan With Sunroom And Optional
Two Bedroom Two Bath W Sunroom 1069 Sq Ft 2 Bed Apartment
1 Br Sunroom For Rent In Meridian Courthouse Commons Person
1 2 3 Bedroom Apartments In Durham Nc Featherstone Village
Royal Sunroom Available One Two And Three Bedroom Apartments
Two Bedroom Two Bath Standard With Sunroom 2 Bed Apartment
Kintore With Sunroom Linkwood Steadings Elgin Springfield
Vintage At Emory Road Apartments Powell Tn 37849 Apartments
Sunroom Design And Construction Euro Pvc Free Project Braga
Floor Plans Pooler Georgia Apartments The Station At Savannah
Dallas Tx Bayou Bend Floor Plans Apartments In Dallas Tx
Elevation B Optional Sunroom Schaeffer Family Homes
Type J1 With Sunroom Mill Valley Mill Valley Ligoniel Road
Vector Illustration Set Of Simple Cosmetics Icons Elements
The Mallard Project Sunroom P O R T F O L I O Furniture
Classic Cape Cod Gem W Fireplace Sunroom Big Fenced Yard
Serendipity Loft With Sunroom 1 Bed Apartment Ashton At Dulles
How Interior Design Renderings Bring A Plan To Life Linda Merrill
House Plans With Sunroom Jamesdelles Com
Two Bedroom Duplex Cottage With Den Sunroom Carol Woods
Alli Ii With Sunroom Red Baron Building Custom Home Builder In
Floor Plans Home Architect Software Home Plan Examples Home
One Bedroom With Sunroom Floorplan 1 Bed 1 5 Bath Robinhood
17 Stonebridge Road Cape Elizabeth Me 04107 Listing 1440765
The Honeysuckle W Sunroom 1 Bed Apartment The Preserve At
Alexandria Wow House Vintage Digs With Sunroom Exercise Room
Floor Plans Floor Plan Availability Bell Roper Mountain
Classical Sunroom Michael Leonard Architect
Southport W 16x16 Sun Room Plan In Farm Lake Cowpens Sc 29330
Baton Rouge La Forestwood Apartments Floor Plans Apartments In
Complementary Colors Floor Plan








0 Response to "Skematic Of A Sunroom"
Post a Comment